Velkoryse pojaté rodinné bydlení na patro, které nabízí pohodlí i flexibilitu pro vícečlennou domácnost. Cena od: 7 441 325,00 Kč
Dispozice a řezy
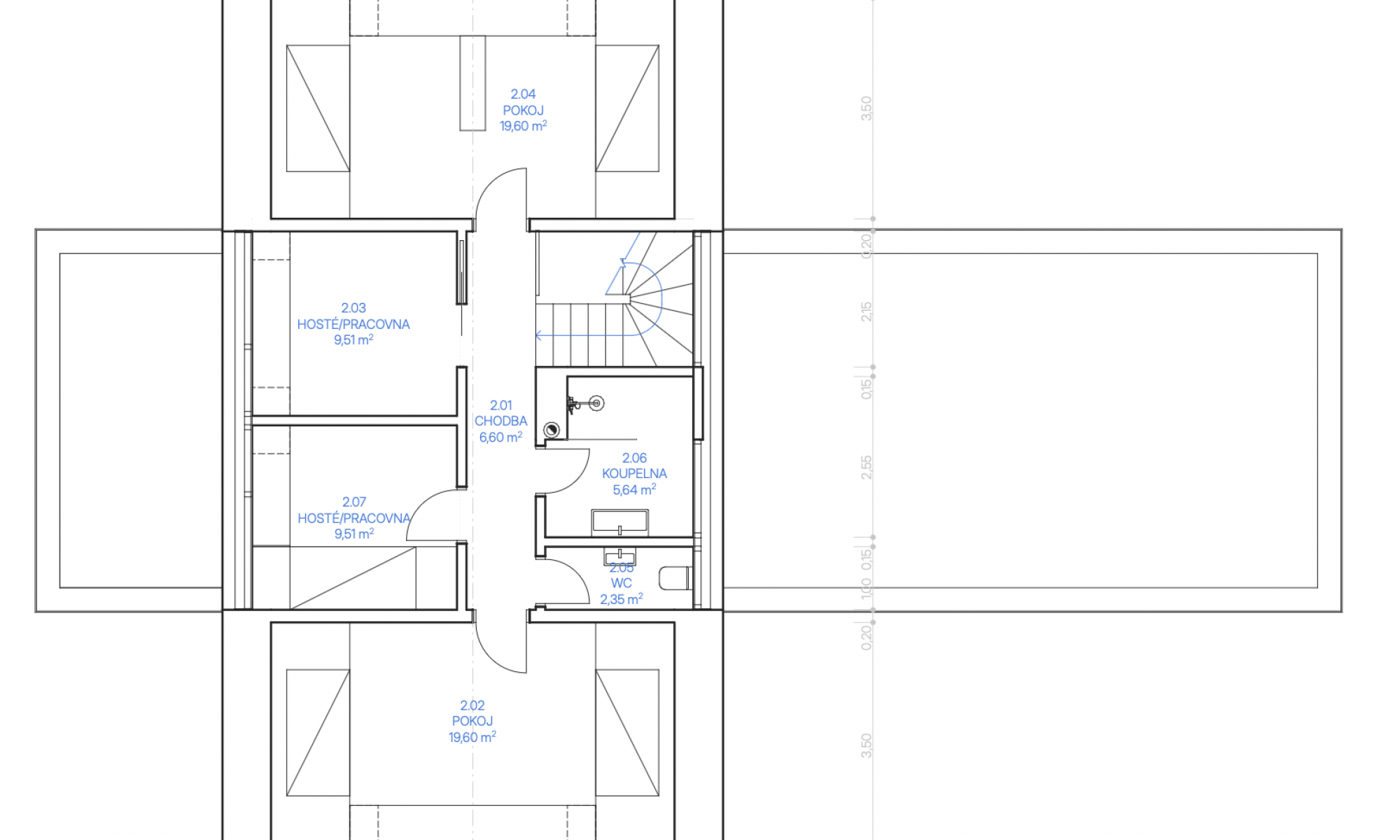
V přízemí se nachází prostorný společný obytný prostor – srdce celého domu, ideální pro rodinný život i setkávání s přáteli. ◾️ Součástí přízemí je také ložnice pro rodiče, zajišťující soukromí a snadnou dostupnost. ◾️ V podkroví se nacházejí dva velké "rostoucí" pokoje situované ve štítech domu, které lze v budoucnu jednoduchým způsobem rozdělit až na čtyři samostatné místnosti podle potřeb rodiny. ◾️Dále zde najdeme pracovnu a pokoj pro hosty, čímž dům poskytuje komfortní zázemí jak pro práci z domova, tak pro návštěvy.
VIZUALIZACE EXTERIÉRU A INTERIÉRU
Dům je charakteristický svým dřevěným obkladem z modřínu, který mu dodává přírodní a moderní vzhled. ◾️ Střecha je doplněna vikýři, které zajišťují dostatek přirozeného světla v podkroví. ◾️Velké prosklení v přízemí obývacího pokoje plynule navazuje na terasu, čímž se prostor otevírá do zahrady a propojuje interiér s exteriérem.◾️ Dům může být doplněn o garážové stání a zahradní domek, což zvyšuje jeho praktičnost a komfort.
KVALITA INDIVIDUÁLNÍ ZAKÁZKY, RYCHLOST TYPOVÉHO DOMU, TRANSPARENTNÍ CENA
Cena domu Hnízdo s užitnou plochou 161 m² ◾️ Hotový architektonický projekt s možností úprav na míru ◾️ Ideální pro ty, kdo chtějí kvalitní bydlení bez dlouhého čekání na projekt.
Cena od: 7 441 325,00 Kč


