Loďka je dům, který na první pohled působí klasicky, ale nenechte se zmást. Pod jeho jednoduchou siluetou se skrývá promyšlený koncept, který překvapí a potěší. Cena od: 5 992 511,00 Kč
Dispozice a řezy
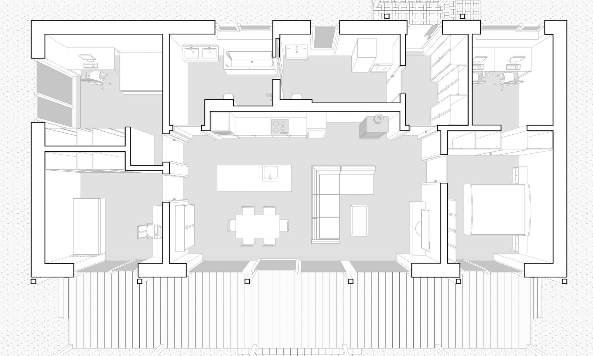
Hlavní devizou je vnitřní řešení bez zbytečných chodeb. Každý metr čtvereční tady má svůj smysl – žádný „hluchý“ prostor, žádné slepé uličky. Vše je navrženo s respektem k reálnému životu. ◾️ Střed domu tvoří velkorysý obývací pokoj s kuchyní – světlo, vzduch, společné chvíle. Z tohoto centrálního prostoru pak vede přímá cesta do jednotlivých pokojů, které tvoří soukromé zóny pro každého člena rodiny. Žádné dlouhé přechody – všechno je na dosah, a přesto s dostatečným odstupem.
VIZUALIZACE EXTERIÉRU A INTERIÉRU
Exteriér zaujme kombinací přírodního dřeva a vláknocementových desek – kontrastní materiály se zde doplňují a dodávají domu osobitý, architektonicky vyspělý výraz. ◾️ Fasáda je střídmá, ale s charakterem. A přesně taková je i Loďka celkově – funkční, praktická, přitom estetická a přívětivá. ◾️ Další z chytrých vychytávek je terasa s pergolou, přístupná ze všech hlavních místností. Ať už chcete ráno v klidu vypít kávu, večer posedět s přáteli, nebo si děti chtějí hrát venku, aniž by rušily ostatní – terasa to umožní. Přirozené prodloužení obytného prostoru ven, do zeleně a pod širé nebe. ◾️ Loďka je ideální pro ty, kdo hledají domov bez zbytečností – promyšlený, praktický, a přitom vizuálně výrazný. Dům, který ví, co potřebujete, ještě než si to uvědomíte vy sami.
Kvalita individuální zakázky, rychlost typového domu, transparentní cena
Cena domu Loďka s užitnou plochou 110 m² ◾️ Hotový architektonický projekt s možností úprav na míru ◾️ Ideální pro ty, kdo chtějí kvalitní bydlení bez dlouhého čekání na projekt.
Cena od: 5 992 511,00 Kč


